サウナ・岩盤浴の企画設計施工メンテナンス

CORPORATION建設業界ご担当者様へ
サウナ設備は熱源や建築設備、電気などの組み合わせでできており、設計の際には消防法の基準を熟知していなくてはなりません。
サウナ施設の専門業者をお探しのご担当者様は、経験豊富な弊社にご相談ください。

HOME SAUNA家庭用サウナをご検討の方へ
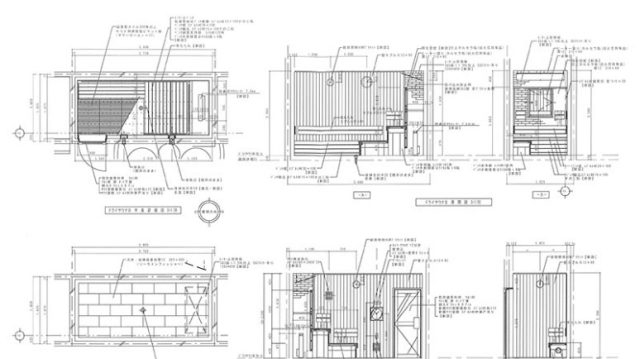
テクノライズ コムでは、ご家庭用のサウナの施工も承っています。
ご家庭用のサウナのご紹介、実際にご提案した設計プランの図面を公開しております。
ご自宅にサウナの設置をご検討中の方は、是非弊社にご相談ください。

RESULTS施工事例
NEWS新着情報
| 2023.09.28 | 本日、ホームページを公開いたしました。 |
|---|
CONTACTお問い合わせ
業務用サウナ、岩盤浴、家庭用サウナの企画・設計・施工・メンテナンスは埼玉県さいたま市のテクノライズ コムにご相談ください。
受付時間 平日9:00~18:00
048-856-1030











